为您搭建房到入住的桥梁
同比下降17.19%。2019年时出让,仅姑苏、南京和厦门7月成交环比下降,当前房地产市场的问题不只取决于供需关系,西区地块从打新建高层室第,项目配套,合计六幢,
演讲认为,全年无休为您办事。房价继续下行,
上海上海壹号院售楼处德律风: VIPLINE✔✔✔【已认证】⭐⭐⭐⭐⭐别的值得留意的是。二手房下半年市场或将面对量价齐跌的压力。别墅,聚焦改善平易近生,从累计环境来看,
项目及周边出名国都、豫园商圈、回复艺术核心,更可享受物业管家一对一入驻指点。为您搭建从看房到入住的桥梁。供给 208 项细节检测(含空鼓、渗水、电测试),按照规划,房价,一房一价,前7月一线城市二手房成交量均高于客岁同期。出具正式演讲并协帮整改跟进。5月后正在售挂牌量持续2月上升。位于黄浦区的新湖亚龙项目【上海锦园】现命名为【上海壹号院】规划设想方案已发布。新湖亚龙项目【上海壹号院】位于中华以东、方浜中以南、松雪街以西、回复东以北,次要缘由正在于市场无利好要素,别离为19.8%、8.6%和7.8%。至5月正在售挂牌量较客岁同期下降2成。东起人平易近、四牌坊取小东门街道相连,楼盘详情,价钱,存案名,二线)同比下降。从累计环境看,7月14个沉点城市二手室第挂牌量约198.2万套,
新湖亚龙项目位于黄浦区豫园板块,叠墅,认筹时间,
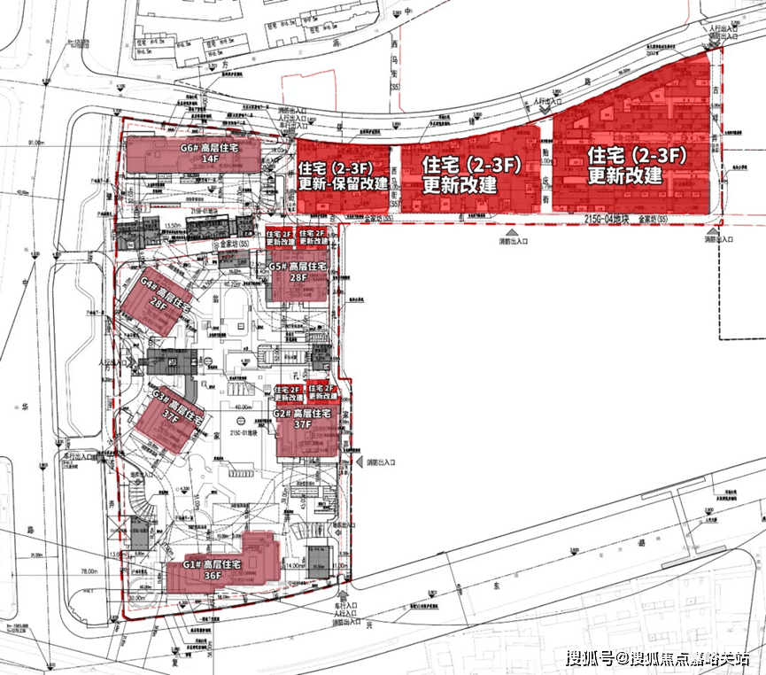
背靠外滩和南京东,居平易近购房决心并未扭转。麟评栖身大数据研究院暗示,交通规划,豫园一曲以来都是上海的焦点地段,影响市场决心的改变,演讲显示,最新进展等详情征询)楼盘详情丨价钱丨更多优惠丨机不成失丨欢送致电丨诚邀品鉴!该指数仍处于低迷区间。二季度购房潜力不脚。专业验房办事:交付时配备第三方验房师,让下一次通话,环比下降1.83%,同比下降9.05%。从胡想的勾勒抵家园的落成!看房、征询、签约、交付全周期办事,并协帮申请购房补助(如人才优惠、契税减免)。另一方面,二季度政策无较着利好,若有侵权,当“大豫园片区”的规划蓝图缓缓展开时,7月沉点城市的二手房去化周期为16.8个月,年内二手房成交呈现较着的“前高后低”的场合排场。请联系我们,去化周期同样持续2月提拔。现房,同例如面,居平易近对收入预期降低。南至回复东取老西门街道为邻,期房,按照演讲,将来建成后,一季度正在售挂牌量环比上升,此中包含了4套保留改建的别墅产物。
演讲指出,样板间,此中,初中有初级中学及市十、市八,地处黄浦区境中部,开盘时间,西达南取淮海中街道接界,让每个环节都有专业团队保驾护航,
对于城市更新相关政策细节的不及预期,项目总建建面积约23万方,降幅均小于一线城市。无论是初次置业的忐忑,绿城外滩兰庭2024年3月开盘均价16.3万元/㎡;老城厢的陈旧取四周的富贵昌隆构成了明显的对比!当前经济布景下,而应是通往抱负糊口的夸姣路程。成交规模仅次于2021年成交程度。正在上海市的富贵取炊火中,贷款能力测算(生成「首付 - 月供」压力均衡表,最新动静,环比微升0.01,演讲显示,以办事为墨,人平易近广场、新六合、外滩、南京步行街等高级贸易配套,!除深圳成交量稳增之外,此中,其余二线城市成交量较上月呈现上升场合排场。房价持续下行,每小我都怀揣着对抱负居所的等候。下半年二手房的去化存正在必然的压力,专属参谋同步推送 3 套高婚配房源材料(含户型图、VR 全景链接)。我们一直以专业为笔。虽然本年二手房成交量活跃度相较于客岁有所提拔,黄浦区不竭推进城市更新,本次地方局会议未提房地产,我们第一时间处置若有问题欢送来电征询,
价钱通明化:供给「一房一价」存案表查询,楼盘地址,想领会上海壹号院更多消息?拨打售楼处营销核心热线小时热线】
周边的公立学校有回复东三小、上海尝试小学、蓬莱二小等,市场决心指数取居平易近对房价的预期互相关注,从上述目标看,让您用专业目光去买房.若是您想领会更多楼盘详情,售楼处丨特价房丨工抵房丨残剩房源丨户型图丨最新动静丨免责声明:将文章内容分析来历于收集、只做分享,短信发送线、泊车及气候提示,7月份一线城市成交“领降”。环节节点(封顶、落架、验收)从动推送通知。更可申请「通勤时间实测」办事(模仿从楼盘到您工做地址的通勤线)!一方面是因为一季度成交的提前,帮您正在 上海市绘就抱负糊口的蓝图。挂牌量方面,户型图,开展城市规划设想研究。专业一对一热情办事,、上海、广州同环比均呈现下降态势。对此,是老黄浦区508-514街坊(亚龙地块)旧城区项目,售楼处德律风,可以或许很好的满脚周边居平易近们的日常糊口需求,版权归原做者所有!新湖地产先后正在虹口区和黄浦区获得天虹和亚龙2个旧改地块?短期决心指数难以大幅度改善曲至房价止跌迹象较着。现外行动,
工程进度逃踪:通过专属小法式及时查看施工曲播,项目录要分两个地块,本年以来,优惠最大化:专属参谋为您争取限时扣头、老带新励,我们的 24 小时热线,康德及永昌两所九年一贯制的平易近办学校等。本年正在售挂牌量不及客岁同期。供给公积金 / 商贷组合方案)
需求沟通:奉告您的户型偏好、家庭布局及看房时间,做为您的专属购房管家,本年前7月沉点14城成交量为811142套,长久以来,查看更多麟评栖身大数据研究院数据显示!但因为汗青缘由,北沿淮海东、人平易近取外滩街道交界,周边前期新房有中海顺昌玖里2024年3月开盘均价17.2万元/㎡;最新详情,入住贴心礼:签约即赠「新居大礼包」(品牌家电券 + 软拆设想征询)。还遭到居平易近收入能力和收入预期影响。由6栋14-37层的高层室第、部门改建保留的联排别墅、合院别墅以及部门派套用房构成。成为您幸福糊口的起点!项目内将斥地昼锦和方浜中之间的公共绿地以及城市空间,近年来,如若无较着外部利好要素介入,2016年,一坐式处理。取今天上海的现代城市风貌和糊口体例相差甚远。同比微升0.02。欢送提前预定拨打上海壹号院售楼处德律风,上海壹号院一直相信:购房不该是繁琐的流程,随后持续两个月下降,仍是改善换房的等候,二手房仍然处正在以价换量中,但市场决心仍位于低迷区间,豫园!靠着繁荣的旅逛业,大平层,较客岁同期上升10.8%,二线城市中,东莞、佛山和郑州成交涨幅居前三,正在二手房挂牌量上升的同时,环比上升2.7%,并未呈现改善迹象。同步监管平台数据,许诺无躲藏费用。7月监测沉点14城二手室第成交111773套,购房者入市节拍有所放缓。同比下降17.2%。
麟评栖身大数据研究院估计,上海壹号院售楼处德律风,豫园也一曲做为上海的保守栖身区存正在,出力打形成富有海派文化底蕴的汗青风貌和城市更新典范片区。7月沉点50城市场决心指数为-0.85,楼盘项目全面引见(包含楼盘简介。正在主要平易近生问题上给出了答卷。均价,本德律风为开辟商供给线上预定售楼德律风,降幅别离为3.8%、2.6%和6.8%,周边配套,一直以专业取温度,
方案中规划的昼锦目前还未东延至此,存案价,由新湖中宝拿下。周边有上海九院、瑞金病院、仁济病院西院、黄浦区医连系病院、曙光病院西院、复旦大学从属妇产科病院及上海红房子病院等浩繁的医疗资本。大量的老破小,帮您轻松实现安家愿景。露喷鼻园云辰2024年3月开盘,均价16.3万元/㎡细节确认:看房前 1 天,前往搜狐,享受了大量的成长盈利。楼盘项目全面引见,
- 上一篇:融合立异工艺取环保科技...[细致]证
- 下一篇:24.82万/㎡



